Подобрать проект
Двухэтажный дом с плоской крышей DAKOTA
- Оригинальный |
- Зеркальный
Общая площадь: 245 м
Площадь первого этажа: 133,1 м
Площадь второго этажа: 60,9 м
Площадь котельной: 5,14 м
Площадь гаража: 36 м
Количество этажей: 2
Материал стен:
Материал перекрытий: Плиты перекрытия
Материал кровли: Мембрана
Тип кровли: Плоская Угол кровли (град.): 2-3 Высота в коньке: 7.1 м Тип отопления:
Площадь застройки: 330 м Размеры участка: 24,75 х 21,15 м Строительный объем: 1713 м Срок подготовки проекта: 5-7 днейСтроительство: ~ 441 000 BYN
Материалы и работы по следующим этапам:
- подготовка участка (снятие плодородного грунта)
- устройство ленточного фундаментов (без коммуникаций)
- возведение стен и перегородок
- устройство перекрытий
- устройство монолитных поясов и перемычек
- монолитная лестница (для 2-х этажных)
- монтаж стропильной системы
- устройство кровли (ЗАБУДОВА, утепление 20 см)
------------------------------------------------
ВНИМАНИЕ! Данная стоимость является ориентировочной и не может расцениваться как коммерческое предложение.
Стоимость проекта:
Двухэтажный дом с плоской крышей
Это проект, который с первого взгляда впечатляет своей современной, неординарной формой. Идеально подходит для застройщиков, которые ищут инновационные решения и определенно любят выделяться. Фасад привлекает внимание большим остеклением и интересно подчеркнутым первым этажом.
Дом выглядит очень эффектно, особенно со стороны сада с красивым крытым патио. Взаимопроникающие плоскости здания и элегантная деревянная отделка подчеркивают современный характер этого дома.
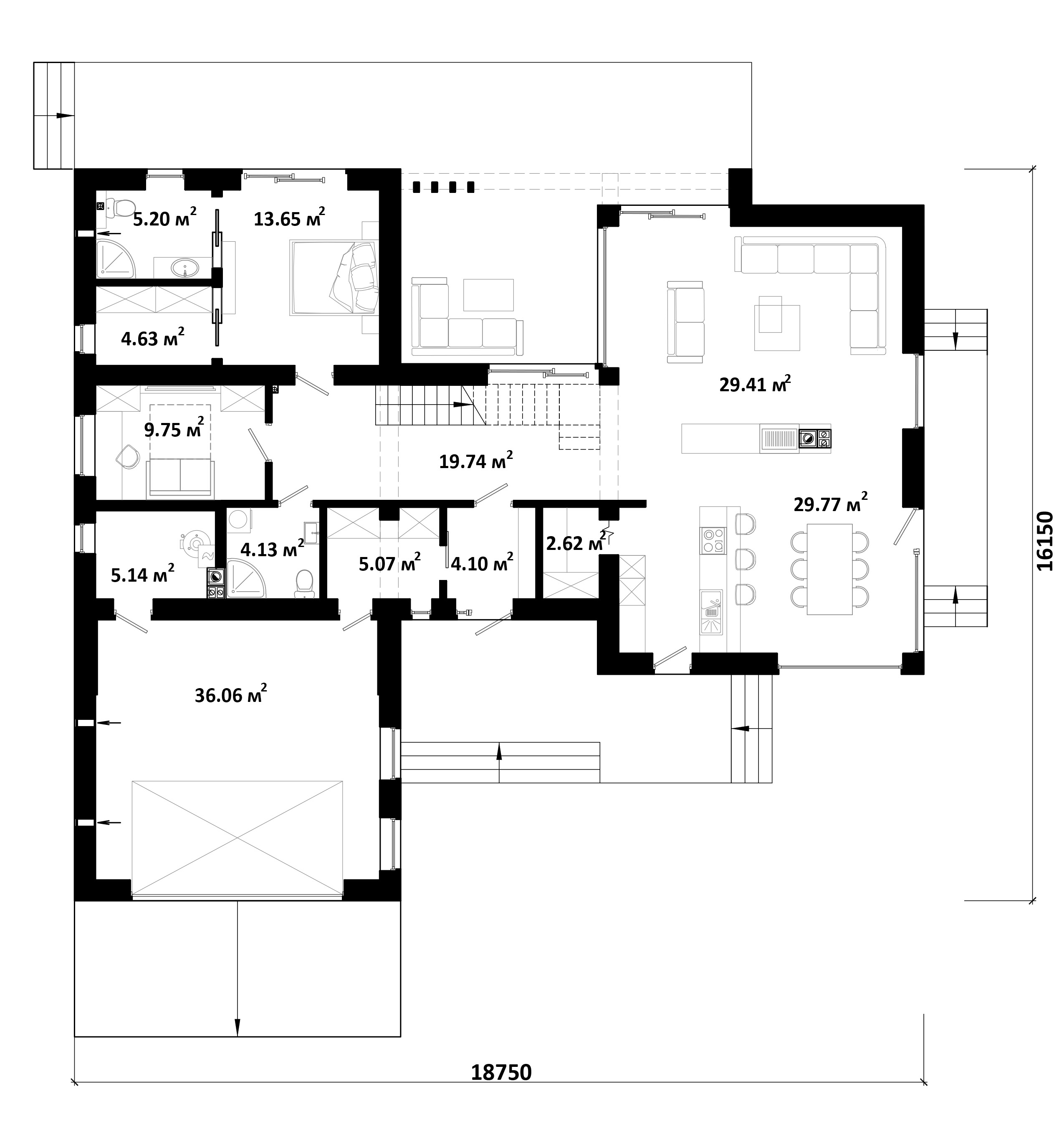
Благодаря большой полезной площади дом имеет богатую внутреннюю функцию. Входная зона имеет небольшую, но практичную крышу. Тамбур имеет место для встроенного шкафа и дополнительно увеличен удобным шкафом, который также является проходом в гараж. В широком, просторном холле есть изящная лестница на второй этаж. Прямо рядом с ним находится красиво застекленная гостиная. Кухня допускает размещение большой барной стойкой.
Большая столовая пространственно связана с кухней. Двусторонний камин визуально разделяет зону отдыха. Уединенный внутренний дворик обеспечит вам уединение во время отдыха на свежем воздухе.
В остальной части дома есть отдельный туалет, тихий кабинет и очень удобный модуль для родителей - большая спальня с выходом на террасу, гардеробная и ванная комната. На втором этаже есть три комнаты, общая ванная комната и прачечная. Все спальни имеют выход на террасу.
Технология строительства дома:
- Фундамент: монолитный ленточный
- Стены: керамзитобетоный блок или газосиликатный сечением 400 мм
- Перекрытия: сборные плиты
- Кровля: наплавляемая мембрана или рубероид
- Утепление фасадов: каменная вата 50 мм.
- Утепление кровли: ППС 200 мм +
- Источник тепла: газовый котел










Комментарии (4)