Подобрать проект
Проект дома с пристроенным навесом RIO
- Оригинальный |
- Зеркальный
Общая площадь: 147 м
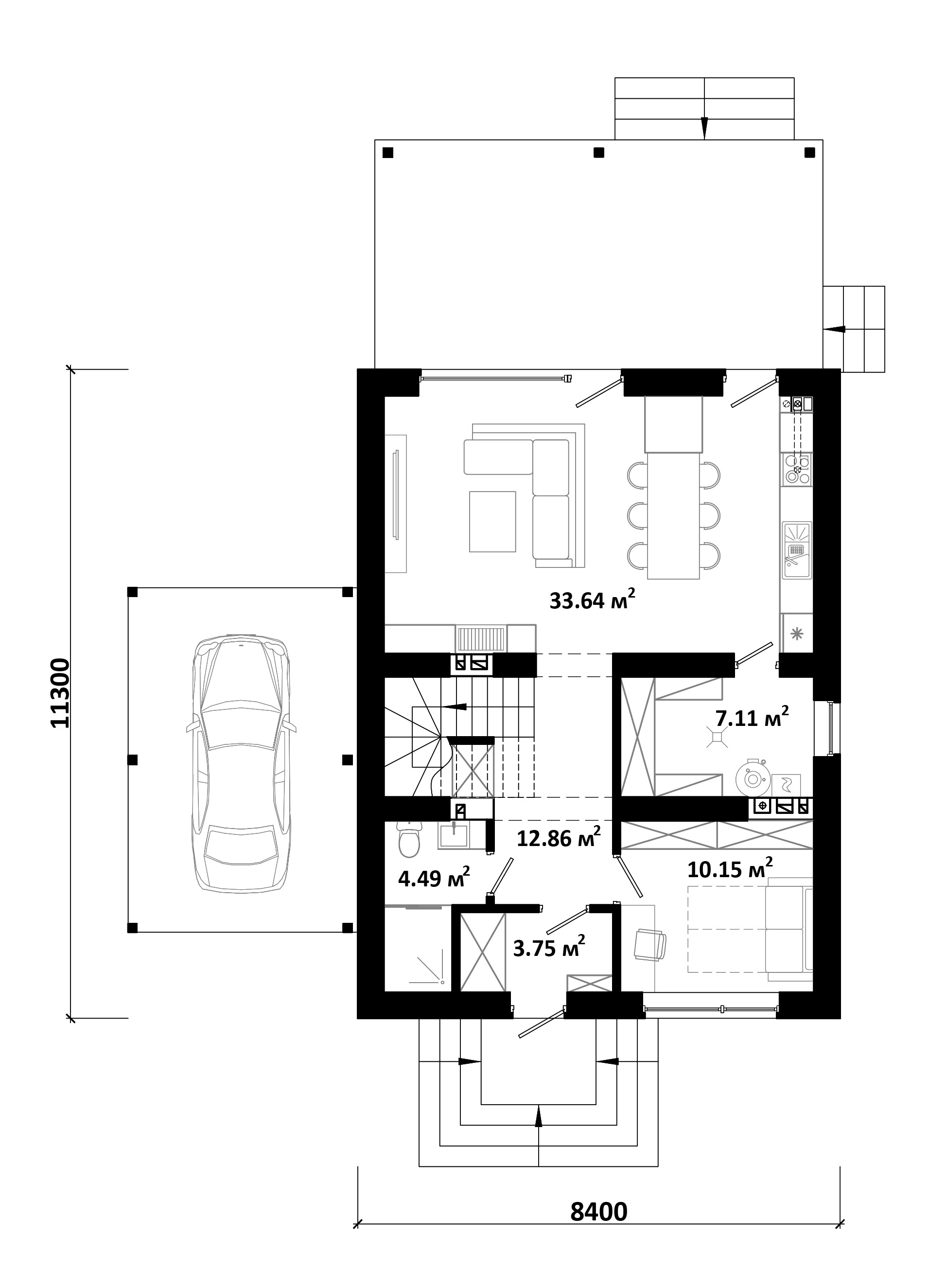
Площадь первого этажа: 81 м
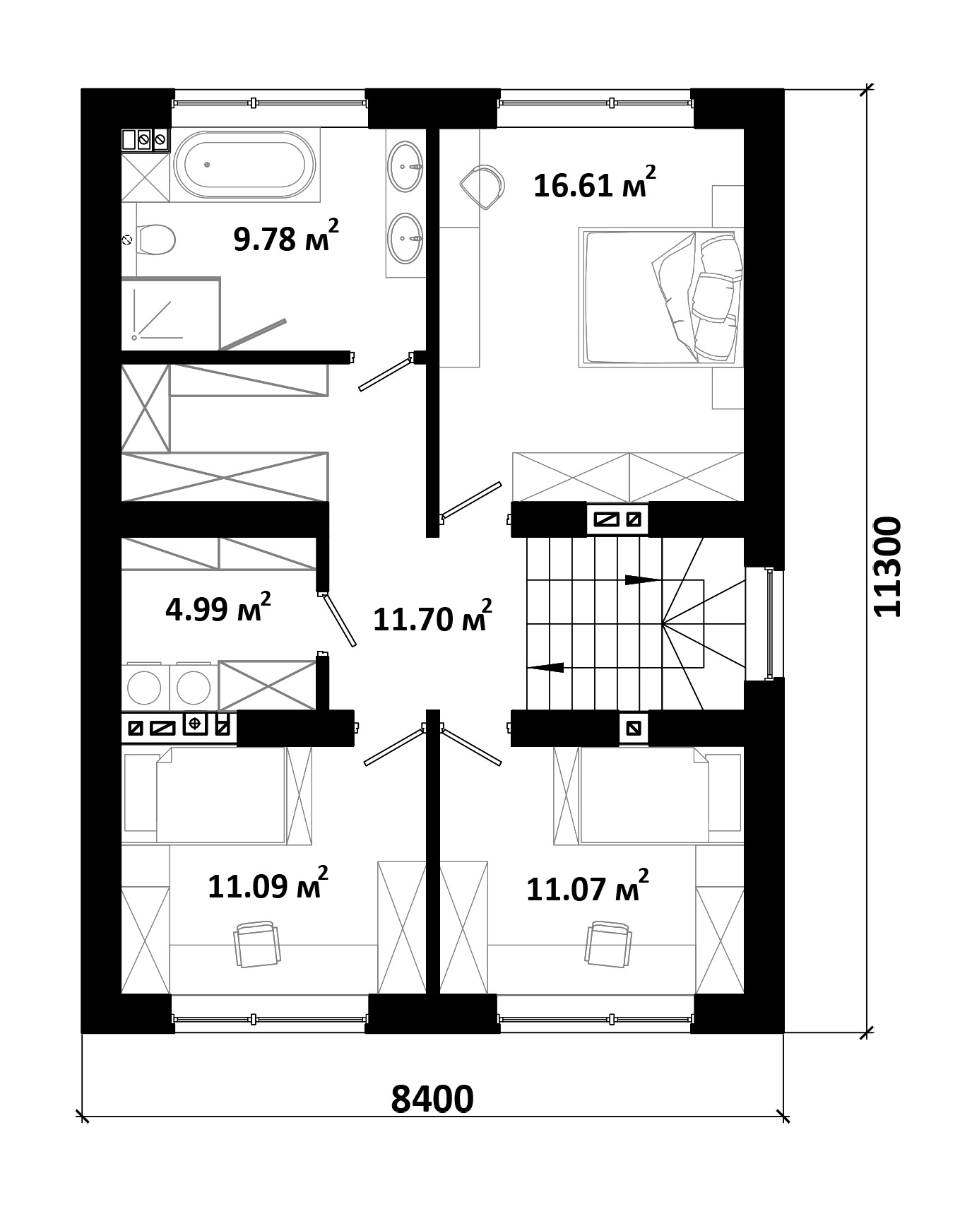
Площадь мансарды: 65 м
Площадь котельной: 7.1 м
Количество этажей: 2
Материал стен:
Материал перекрытий: Плиты перекрытия
Материал кровли:
Площадь кровли: 180 м
Тип кровли: Скатная
Угол кровли (град.): 30
Тип отопления:
Площадь застройки: 167 м
Размеры участка: 17.4 x 24.3 м
Строительный объем: 660 м
Срок подготовки проекта: 3-5 дней
Строительство: ~ 264 600 BYN
Материалы и работы по следующим этапам:
- подготовка участка (снятие плодородного грунта)
- устройство ленточного фундаментов (без коммуникаций)
- возведение стен и перегородок
- устройство перекрытий
- устройство монолитных поясов и перемычек
- монолитная лестница (для 2-х этажных)
- монтаж стропильной системы
- устройство кровли (ЗАБУДОВА, утепление 20 см)
------------------------------------------------
ВНИМАНИЕ! Данная стоимость является ориентировочной и не может расцениваться как коммерческое предложение.
Стоимость проекта:
3000 BYN
ЗАКАЗАТЬ ПРОЕКТ
Проект дома с пристроенным навесом
Проект дома RIO – это новый проект в новом стиле с новым функционалом! Мы реши создать проект дома с пристроенным навесом – это очень частый запрос среди наших застройщиков. Кроме этого, мы запроектировали шикарную террасу – для приятных посиделок всей семьей.На первом этаже предусмотрены: гостевая комната (или кабинет), гостиная, совмещенная с кухней, кладовая комната (она же котельная объемом 15 м3) рядом с кухней, санузел с душевой кабиной и небольшая кладовка под лестницей для уборочного инвентаря. Второй этаж вместил в себя спальню хозяев, две детские комнаты, которые при желании можно объединить в одну большую. Общая ванная комната, гардеробная и прачечная.
Архитектура дома имеет простые прямоугольные формы, что существенно отразится на сокращении бюджета строительства.
Технологии строительства дома:
- фундаменты: монолитный ленточный или по результатам геологии
- стены: керамзитобетонный блок или газосиликатный 400 мм
- перекрытия: плиты перекрытия
- кровля: фальцевая кровля
- утепление фасадов и кровли: каменная вата
- источник тепла: газовый котел










Комментарии (4)