Подобрать проект
Проект дома в стиле БАРНХАУС УНИВЕРСАЛЬНЫЙ 2
- Оригинальный |
- Зеркальный
Общая площадь: 176 м
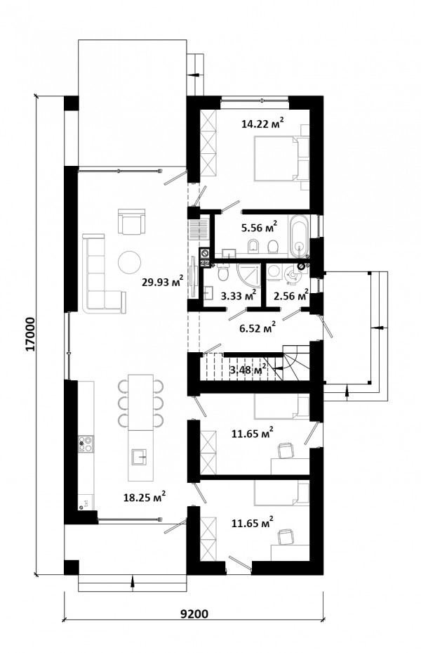
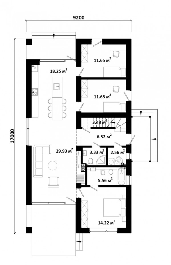
Площадь первого этажа: 107 м
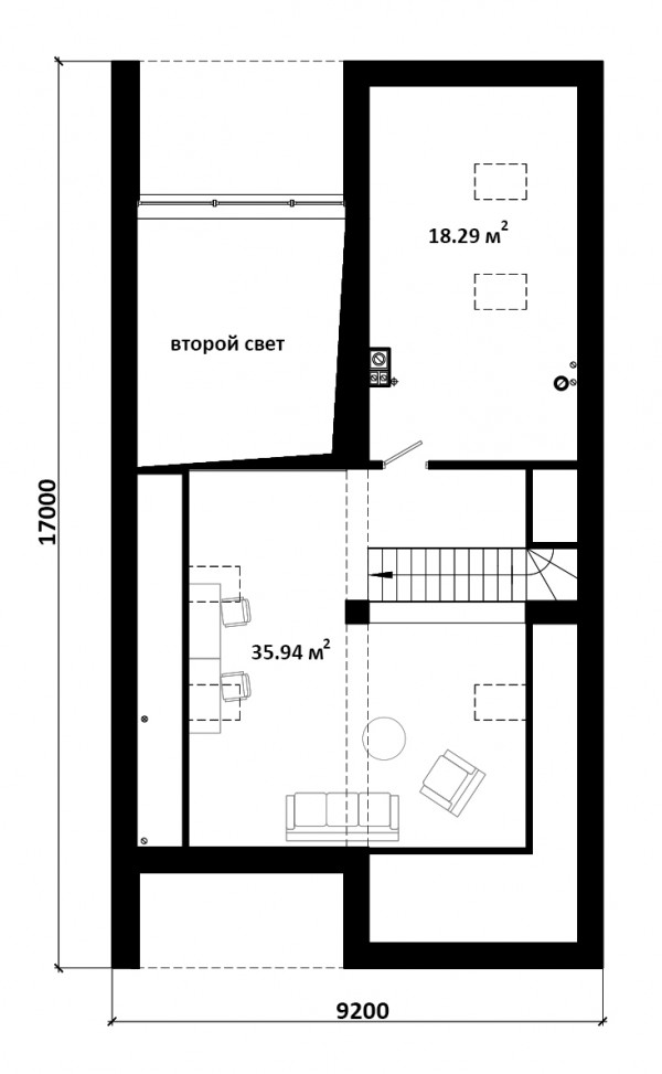
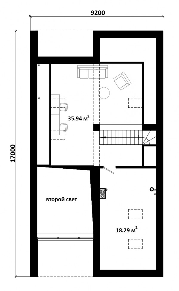
Площадь мансарды: 54 м
Площадь котельной: 2,56 м
Материал стен:
Материал перекрытий: Железобетон
Материал кровли:
Площадь кровли: 142 м
Тип кровли: Двухскатная
Угол кровли (град.): 35
Высота в коньке: 6,9 м
Тип отопления:
Площадь застройки: 164 м
Строительный объем: 1398 м
Срок подготовки проекта: 2-3 дня
Строительство: ~ 316 800 BYN
Материалы и работы по следующим этапам:
- подготовка участка (снятие плодородного грунта)
- устройство ленточного фундаментов (без коммуникаций)
- возведение стен и перегородок
- устройство перекрытий
- устройство монолитных поясов и перемычек
- монолитная лестница (для 2-х этажных)
- монтаж стропильной системы
- устройство кровли (ЗАБУДОВА, утепление 20 см)
------------------------------------------------
ВНИМАНИЕ! Данная стоимость является ориентировочной и не может расцениваться как коммерческое предложение.
Стоимость проекта:
2500 BYN
ЗАКАЗАТЬ ПРОЕКТ










Комментарии (4)