Подобрать проект
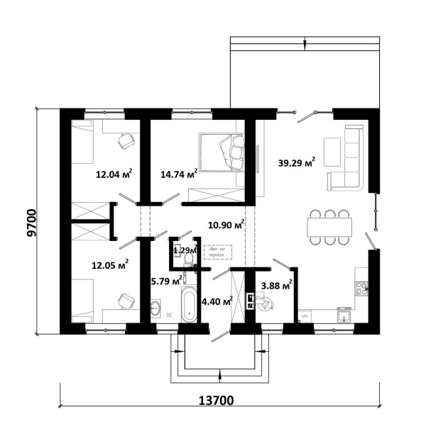
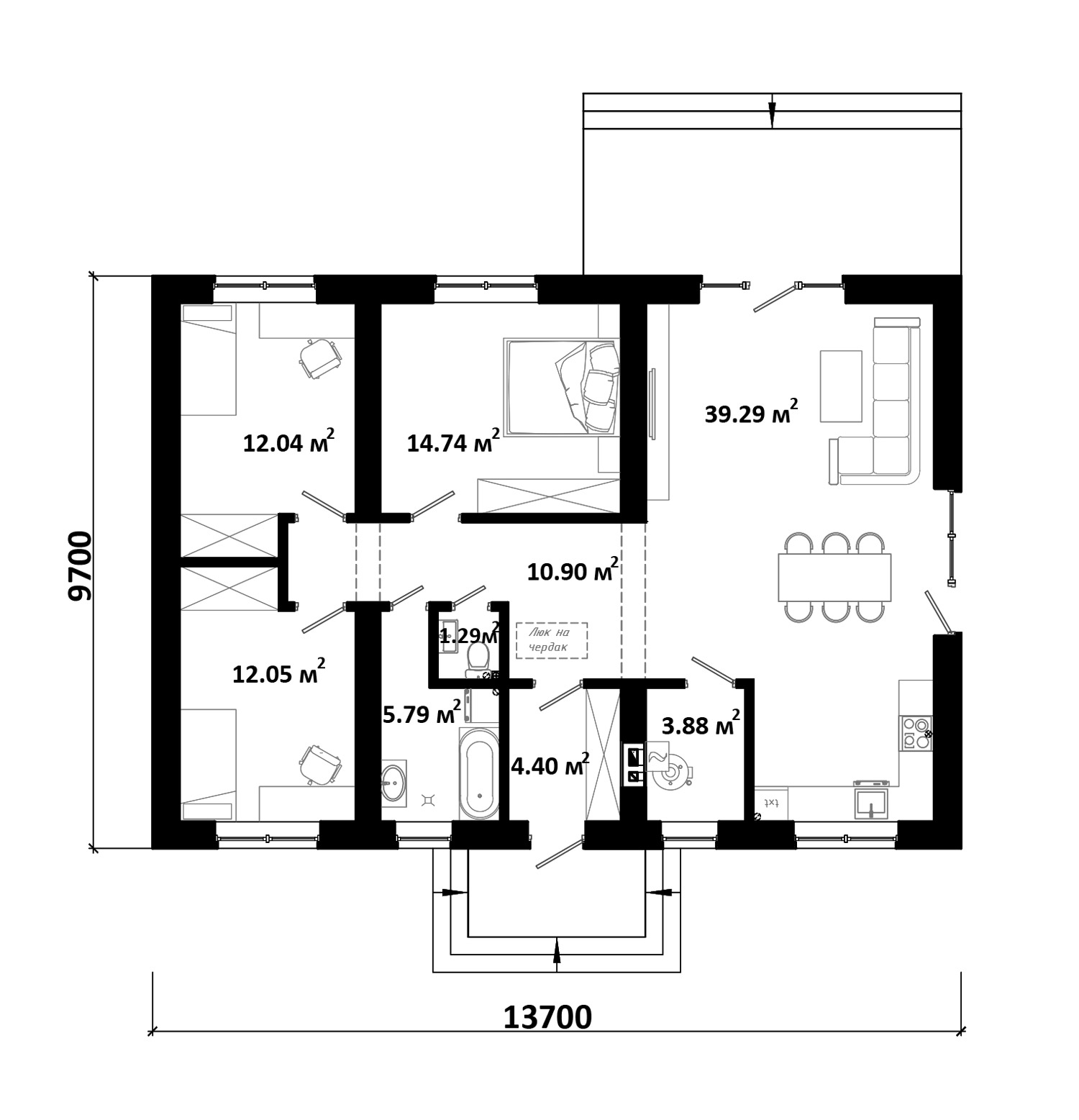
Проект одноэтажного дома DENVER
- Оригинальный |
- Зеркальный
Общая площадь: 105 м
Площадь первого этажа: 105 м
Площадь котельной: 4 м
Материал стен:
Материал перекрытий: Деревянные балки
Материал кровли:
Площадь кровли: 192 м
Тип кровли: Двухскатная
Угол кровли (град.): 27
Высота в коньке: 6,65 м
Тип отопления:
Площадь застройки: 162 м
Размеры участка: 19,2 * 18,2 м
Строительный объем: 690 м
Срок подготовки проекта: 3-5 дней
Строительство: ~ 241 500 BYN
Материалы и работы по следующим этапам:
- подготовка участка (снятие плодородного грунта)
- устройство ленточного фундаментов (без коммуникаций)
- возведение стен и перегородок
- устройство перекрытий
- устройство монолитных поясов и перемычек
- монолитная лестница (для 2-х этажных)
- монтаж стропильной системы
- устройство кровли (ЗАБУДОВА, утепление 20 см)
------------------------------------------------
ВНИМАНИЕ! Данная стоимость является ориентировочной и не может расцениваться как коммерческое предложение.
Стоимость проекта:
2400 BYN
ЗАКАЗАТЬ ПРОЕКТ






Комментарии ()