Подобрать проект
Проект двухэтажного дома с гаражом и балконом в скандинавском стиле NORD
- Оригинальный |
- Зеркальный
Общая площадь: 217 м
Площадь первого этажа: 87 м
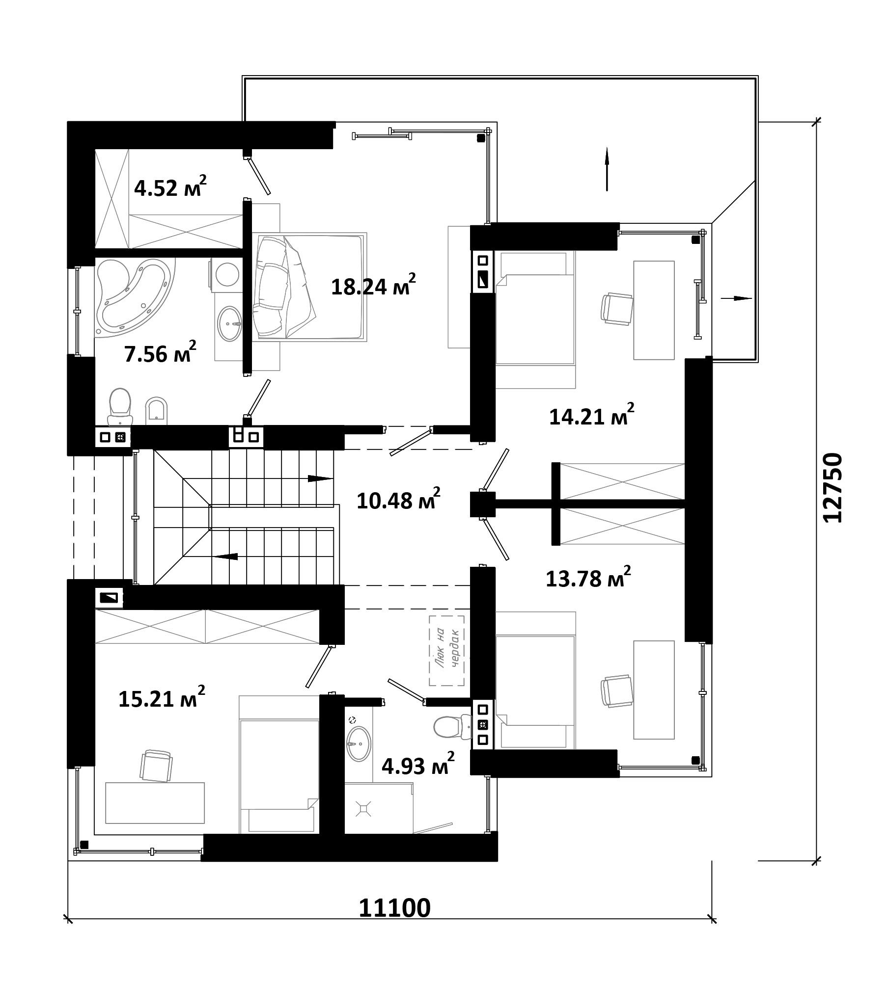
Площадь второго этажа: 94 м
Площадь котельной: 6.5 м
Площадь гаража: 36 м
Количество этажей: 2
Материал стен:
Материал перекрытий: Железобетон
Материал кровли:
Площадь кровли: 250 м
Тип кровли: Двухскатная
Угол кровли (град.): 12
Высота в коньке: 8,3 м
Тип отопления:
Площадь застройки: 240 м
Размеры участка: 19.2 х 24.8 м
Строительный объем: 890 м
Срок подготовки проекта: от 14 дней
Строительство: ~ 390 600 BYN
Материалы и работы по следующим этапам:
- подготовка участка (снятие плодородного грунта)
- устройство ленточного фундаментов (без коммуникаций)
- возведение стен и перегородок
- устройство перекрытий
- устройство монолитных поясов и перемычек
- монолитная лестница (для 2-х этажных)
- монтаж стропильной системы
- устройство кровли (ЗАБУДОВА, утепление 20 см)
------------------------------------------------
ВНИМАНИЕ! Данная стоимость является ориентировочной и не может расцениваться как коммерческое предложение.
Стоимость проекта:
Проект двухэтажного дома в скандинавском стиле
Очень необычный проект двухэтажного дома в скандинавском стиле. И надо сказать в нем одни достоинства! Два полноценных этажа, гараж на 2 автомобиля. Помещение топочной, кладовая с выходом на улицу.
Просторная зоны приготовления пищи и обеденная зона. Светлая гостиная с выходом на большую террасу.
На втором этаже у нас размещается спальня хозяев со своей ванной комнатой, со своей гардеробной и выходом на балкон. Кроме этого есть еще три детские комнаты и одна общая ванная. И это всего-то в 220 метрах!
По конструкции дом представляет собой «коробку» несложной геометрической формы. А небольшая площадь перекрытий и простая конструкция кровли не «раздуют» бюджет строительства.
Отдельное внимание надо уделить конструкции кровли. Это, так называемая «разорванная кровля». Два ската кровли находятся в разных уровнях, что делает монтаж кровли простым, а саму конструкцию очень надежной.
Технологии строительства дома:
- фундаменты: монолитный ленточный или свайно-ростверковый
- стены:керамзитобетонный блок или газосиликатный 400 мм
- перекрытия: монолитный железобетон
- кровля: натуральная черепица
- утепление фасадов и кровли: каменная вата
- источник тепла: газовый котел
Проект неоднократно строился в Минском районе. Смотрите другие проекты домов от 200 м2 в нашем каталоге.










Камин в доме — есть. Он находится возле кресла под цифрой 32,35.
Шахта камина спрятана в простенке между столовой и залом.
Прошу уточнить, возможно ли в проекте сделать изменения без дополнительной оплаты?
Требуется изменить внешнюю отделку, цвета штукатурки, и вместо пвх рейки сделать облицовку кирпичом.
Облицевать дом кирпичом можно и без существенных изменения проекта. Произойдет расширение ширины фундамента и добавится пару узлов крепления.
Можете расчитывать, что это можно сделать без дополнительных оплат.
С Уважением…
Надеюсь, скоро решим вопрос с участком и сразу к вам за проектом.
Да, в общем, любую керамическую черепицу можно положить на кровлю 12 градусов но:
1. В качестве основания должен быть выполнен сплошной настил.
2. Должна использоваться специальная диффузионная мембрана.
Нравится Ваш проект. Какой высоты панорамные окна на первом и втором этажах?
Подскажите, какая высота дверных проёмов и толщина межэтажного перекрытия предусмотрены в проекте?