Подобрать проект
Проект современного дома с навесом PLATO
- Оригинальный |
- Зеркальный
Общая площадь: 203 м
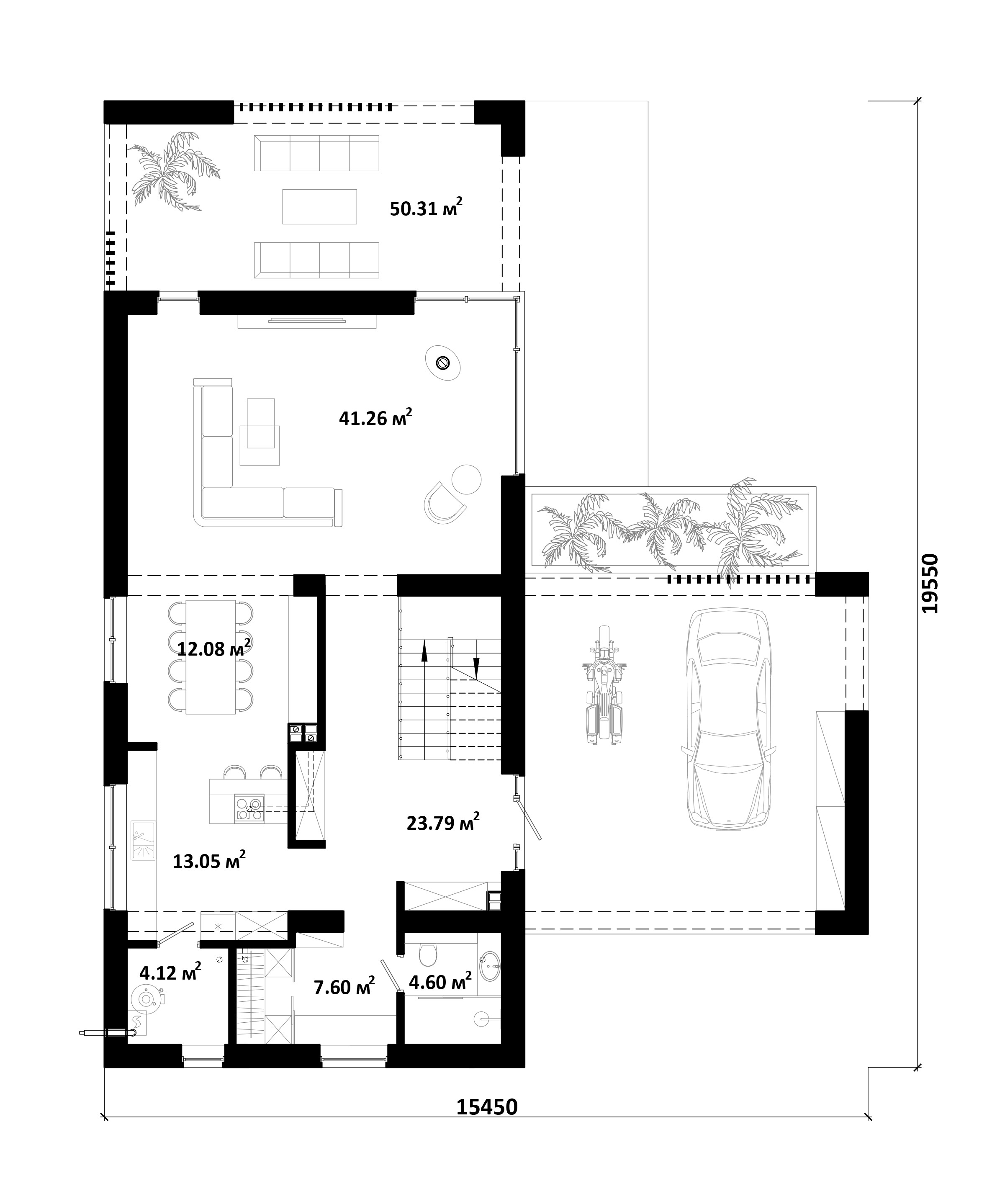
Площадь первого этажа: 122 м
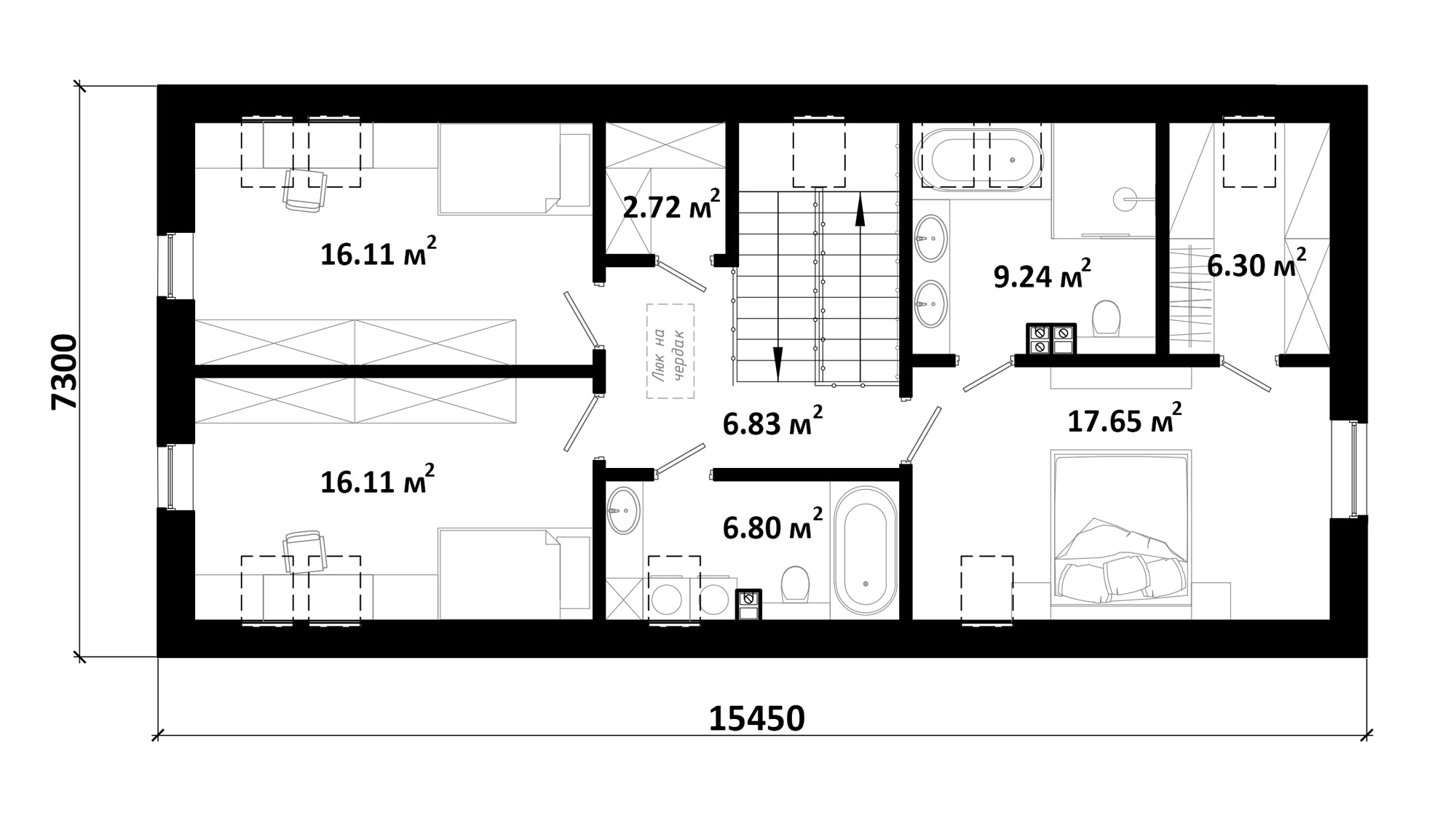
Площадь мансарды: 82 м
Площадь котельной: 4.1 м
Материал стен:
Материал перекрытий: Монолитный железобетон
Материал кровли: Мембрана / Черепица
Площадь кровли: 230 м Тип кровли: Двухскатная / Плоская Угол кровли (град.): 40 Высота в коньке: 8.5 м Тип отопления:
Площадь застройки: 247 м Строительный объем: 857 м Срок подготовки проекта: от 30 днейСтроительство: ~ 365 400 BYN
Материалы и работы по следующим этапам:
- подготовка участка (снятие плодородного грунта)
- устройство ленточного фундаментов (без коммуникаций)
- возведение стен и перегородок
- устройство перекрытий
- устройство монолитных поясов и перемычек
- монолитная лестница (для 2-х этажных)
- монтаж стропильной системы
- устройство кровли (ЗАБУДОВА, утепление 20 см)
------------------------------------------------
ВНИМАНИЕ! Данная стоимость является ориентировочной и не может расцениваться как коммерческое предложение.
Стоимость проекта:










Комментарии (4)