Подобрать проект
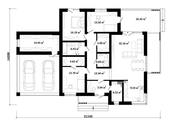
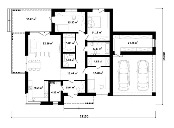
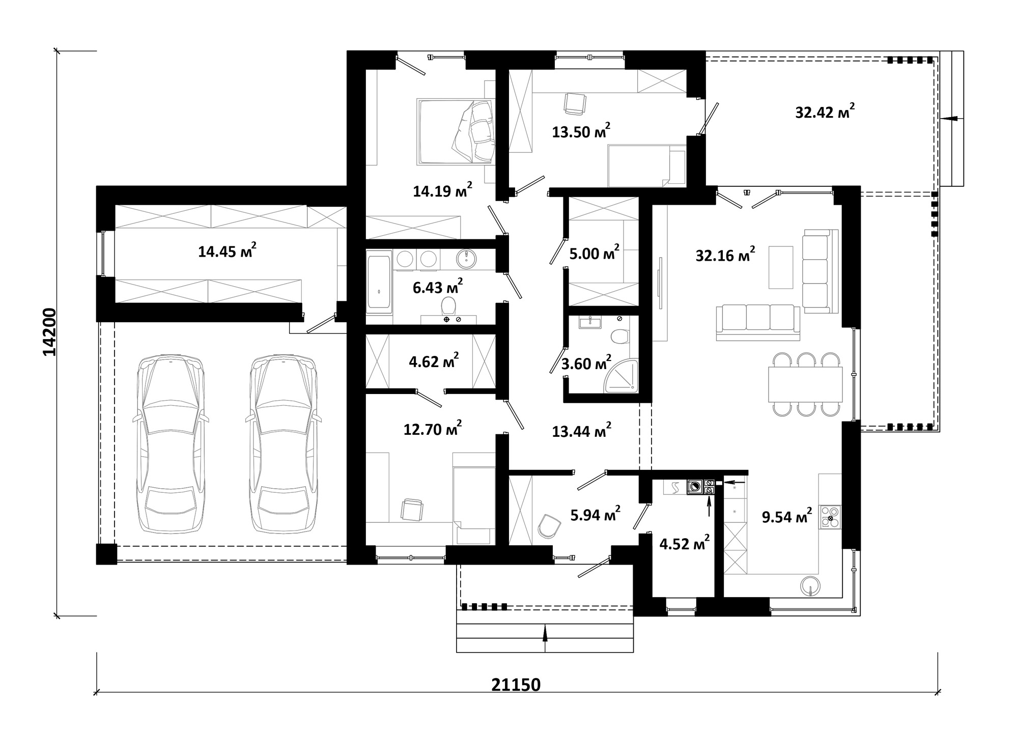
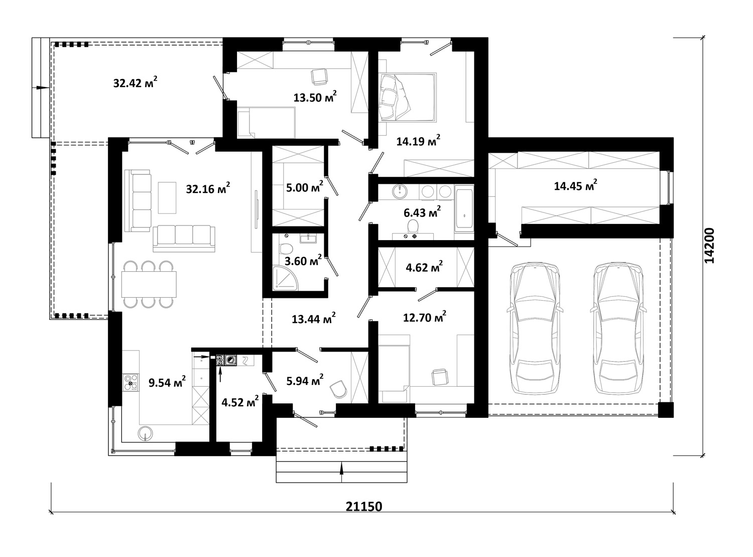
Проект одноэтажного дома с навесом AMIKA-3
- Оригинальный |
- Зеркальный
Общая площадь: 150 м
Площадь первого этажа: 150 м
Площадь котельной: 4.5 м
Материал стен:
Материал перекрытий: Плиты перекрытия
Материал кровли: Мембрана
Площадь кровли: 216 м Тип кровли: Плоская Угол кровли (град.): 2-3 Высота в коньке: 4,3 м Тип отопления:
Площадь застройки: 265 м Строительный объем: 587 м Срок подготовки проекта: 3-5 днейСтроительство: ~ 345 000 BYN
Материалы и работы по следующим этапам:
- подготовка участка (снятие плодородного грунта)
- устройство ленточного фундаментов (без коммуникаций)
- возведение стен и перегородок
- устройство перекрытий
- устройство монолитных поясов и перемычек
- монолитная лестница (для 2-х этажных)
- монтаж стропильной системы
- устройство кровли (ЗАБУДОВА, утепление 20 см)
------------------------------------------------
ВНИМАНИЕ! Данная стоимость является ориентировочной и не может расцениваться как коммерческое предложение.
Стоимость проекта:








Комментарии ()