Подобрать проект
Проект одноэтажного дома с плоской крышей BERGEN-1
- Оригинальный |
- Зеркальный
Общая площадь: 160 м
Площадь первого этажа: 159 м
Площадь котельной: 5 м
Материал стен:
Материал перекрытий: Плиты перекрытия
Материал кровли: Мембрана
Площадь кровли: 226 м Тип кровли: Плоская Угол кровли (град.): 2-3 Высота в коньке: 4,1 м Тип отопления:
Площадь застройки: 262 м Размеры участка: 25,7 х м Строительный объем: 757 м Срок подготовки проекта: 2-3 дняСтроительство: ~ 368 000 BYN
Материалы и работы по следующим этапам:
- подготовка участка (снятие плодородного грунта)
- устройство ленточного фундаментов (без коммуникаций)
- возведение стен и перегородок
- устройство перекрытий
- устройство монолитных поясов и перемычек
- монолитная лестница (для 2-х этажных)
- монтаж стропильной системы
- устройство кровли (ЗАБУДОВА, утепление 20 см)
------------------------------------------------
ВНИМАНИЕ! Данная стоимость является ориентировочной и не может расцениваться как коммерческое предложение.
Стоимость проекта:
Проект современного дома с плоской крышей
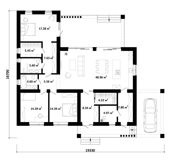
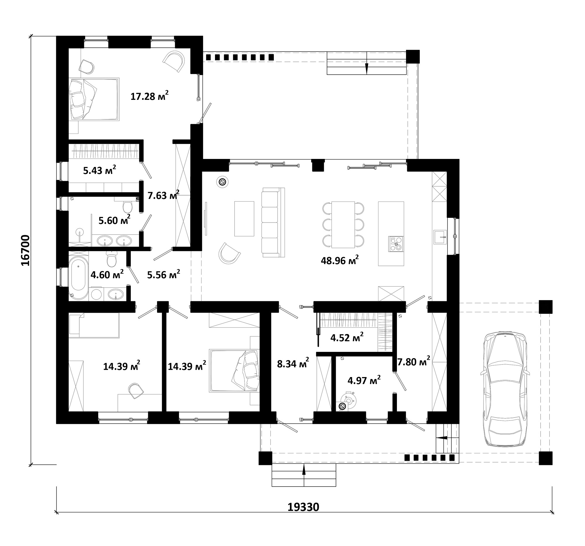
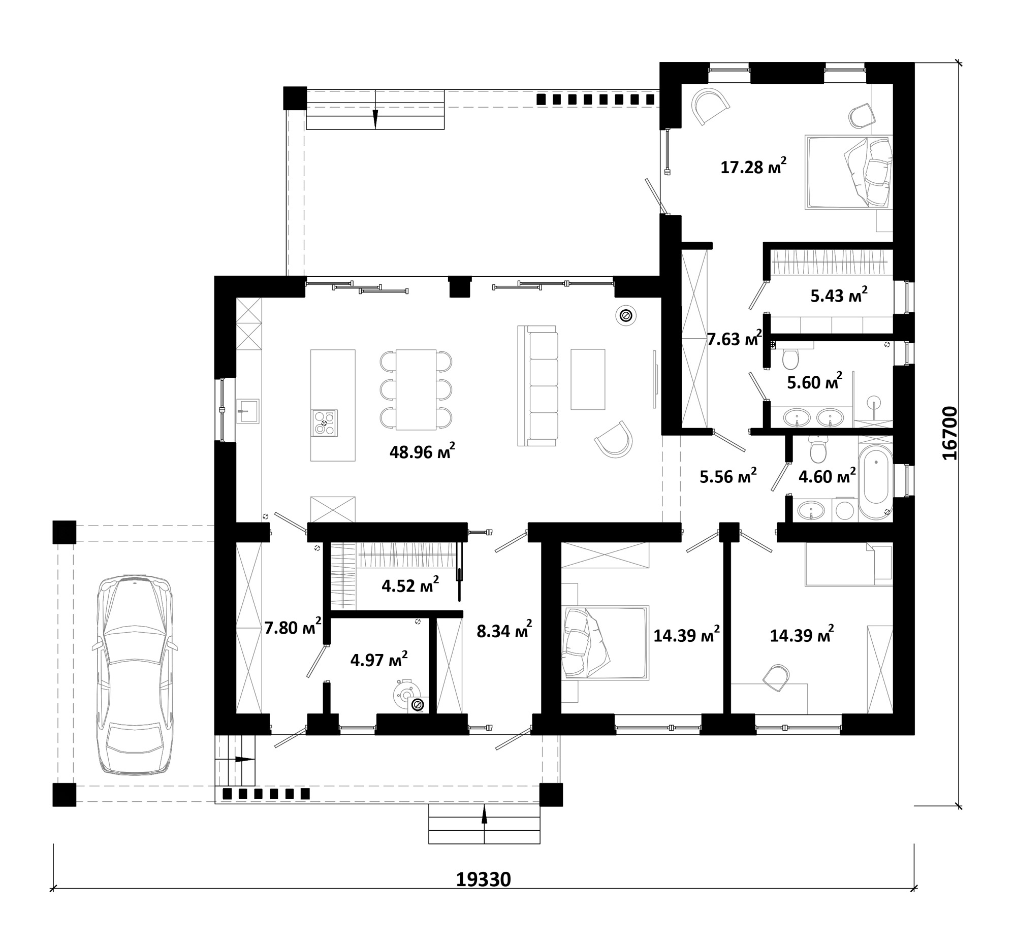
Продолжая серию одноэтажных домов с плоскими крышами мы предлагаем вам вот такой вариант современного дома с пристроенным навесом.
Дом предполагает проживание семьи из 3-4 человек. В составе помещений у нас есть 3 жилые комнаты, просторная гостиная совмещенная с кухней.
В спальне хозяев предусмотрены свои ванная комната и гардеробная. В доме так ж есть кладовая возле кухни, небольшая гардеробная при входе в дом.
Из гостиной можно выйти на крытую террасу, которая входит в основной объем здания.
В проекте используются следующие материалы:
- фундамент: монолитный ленточный, плитный или свайно-ростверковый
- стены: керамзитобетонные блоки 400 мм
- перекрытия: железобетон
- крыша: мембрана
- утепление фасадов: каменная вата 50 мм
- источник тепла: газовый котел








Комментарии ()