Подобрать проект
Проект одноэтажного дома с гаражом из блоков ARIEL
- Оригинальный |
- Зеркальный
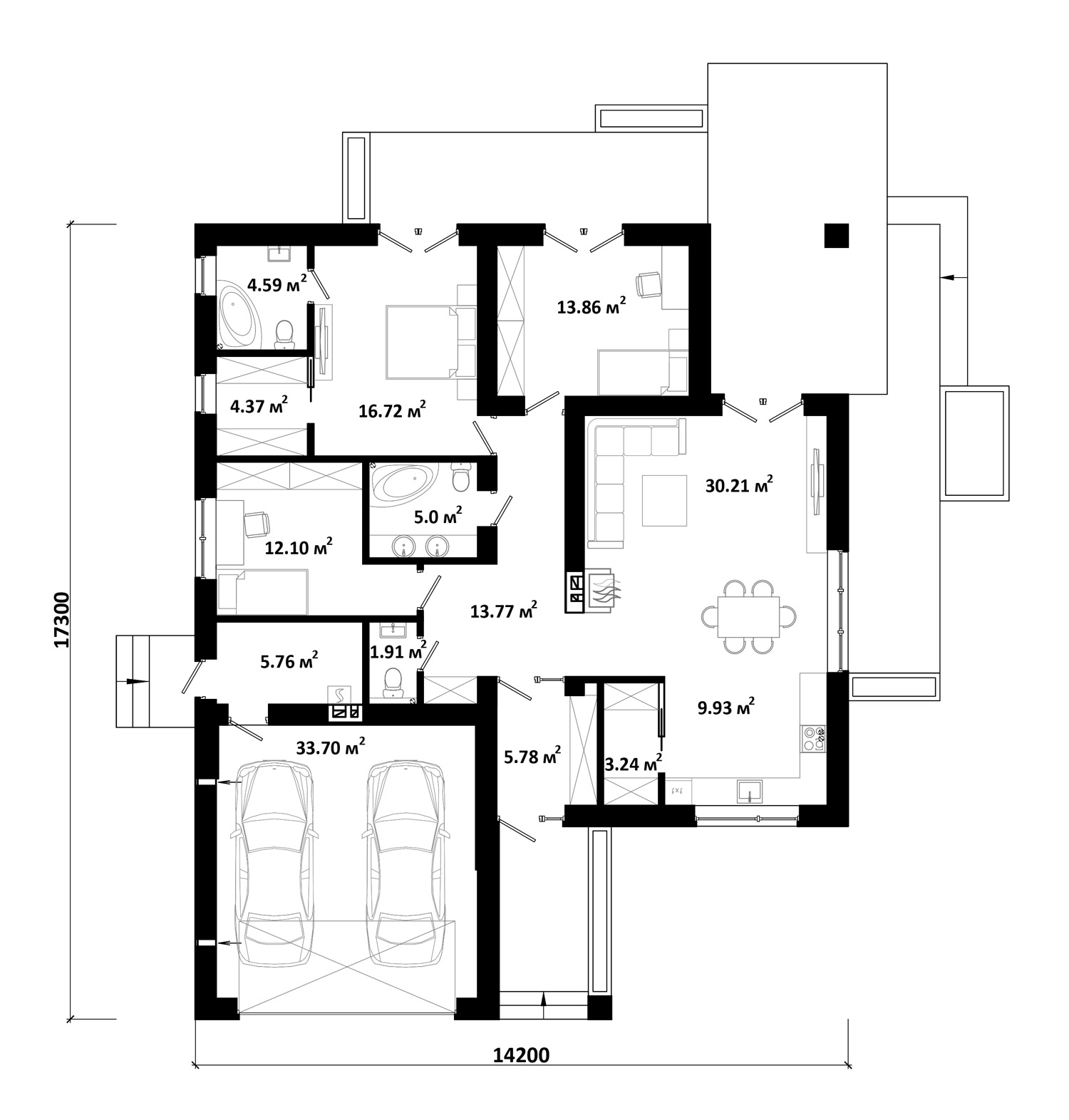
Общая площадь: 160 м
Площадь первого этажа: 128.52 м
Площадь котельной: 5.9 м
Площадь гаража: 32 м
Материал стен:
Материал перекрытий: Плиты перекрытия
Материал кровли:
Площадь кровли: 320 м
Тип кровли: Четырехскатная
Угол кровли (град.): 25
Высота в коньке: 7.50 м
Тип отопления:
Площадь застройки: 203.00 м
Размеры участка: 22.14 / 26.19 м
Строительный объем: 820 м
Срок подготовки проекта: 2-3 дня
Строительство: ~ 368 000 BYN
Материалы и работы по следующим этапам:
- подготовка участка (снятие плодородного грунта)
- устройство ленточного фундаментов (без коммуникаций)
- возведение стен и перегородок
- устройство перекрытий
- устройство монолитных поясов и перемычек
- монолитная лестница (для 2-х этажных)
- монтаж стропильной системы
- устройство кровли (ЗАБУДОВА, утепление 20 см)
------------------------------------------------
ВНИМАНИЕ! Данная стоимость является ориентировочной и не может расцениваться как коммерческое предложение.
Стоимость проекта:
3000 BYN
ЗАКАЗАТЬ ПРОЕКТ








1) какая высота потолков по проекту (выбираю между Ариель и Добрый 2)
2) Из-за чего высота в коньке такая большая, если не предусмотрена мансарда (опять же сравнивая с Добрый 2)
3) можно ли узнать линейные размеры помещений
Спасибо!
1. Где можно ознакомиться с линейными размерами
2. При заказе можно изменить материал стен и фундамент?
Про состав проекта вот в этом разделе подробно все описано))
В проекте есть таблица с рассчитанным расходом материалов.
Если Вам нужна смета для получения кредита в банке — это отдельный документ — выполняется за отдельную плату.