Подобрать проект
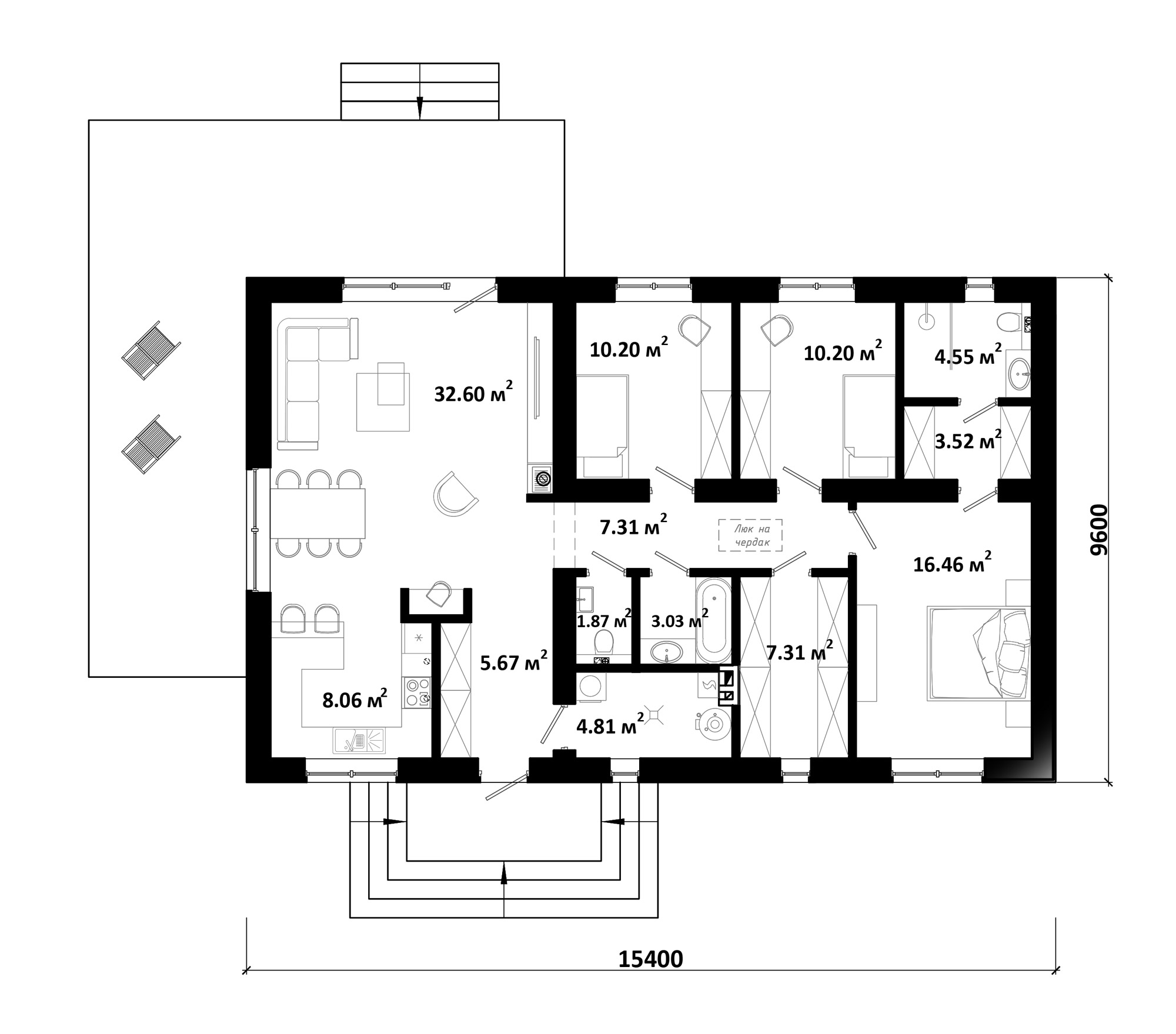
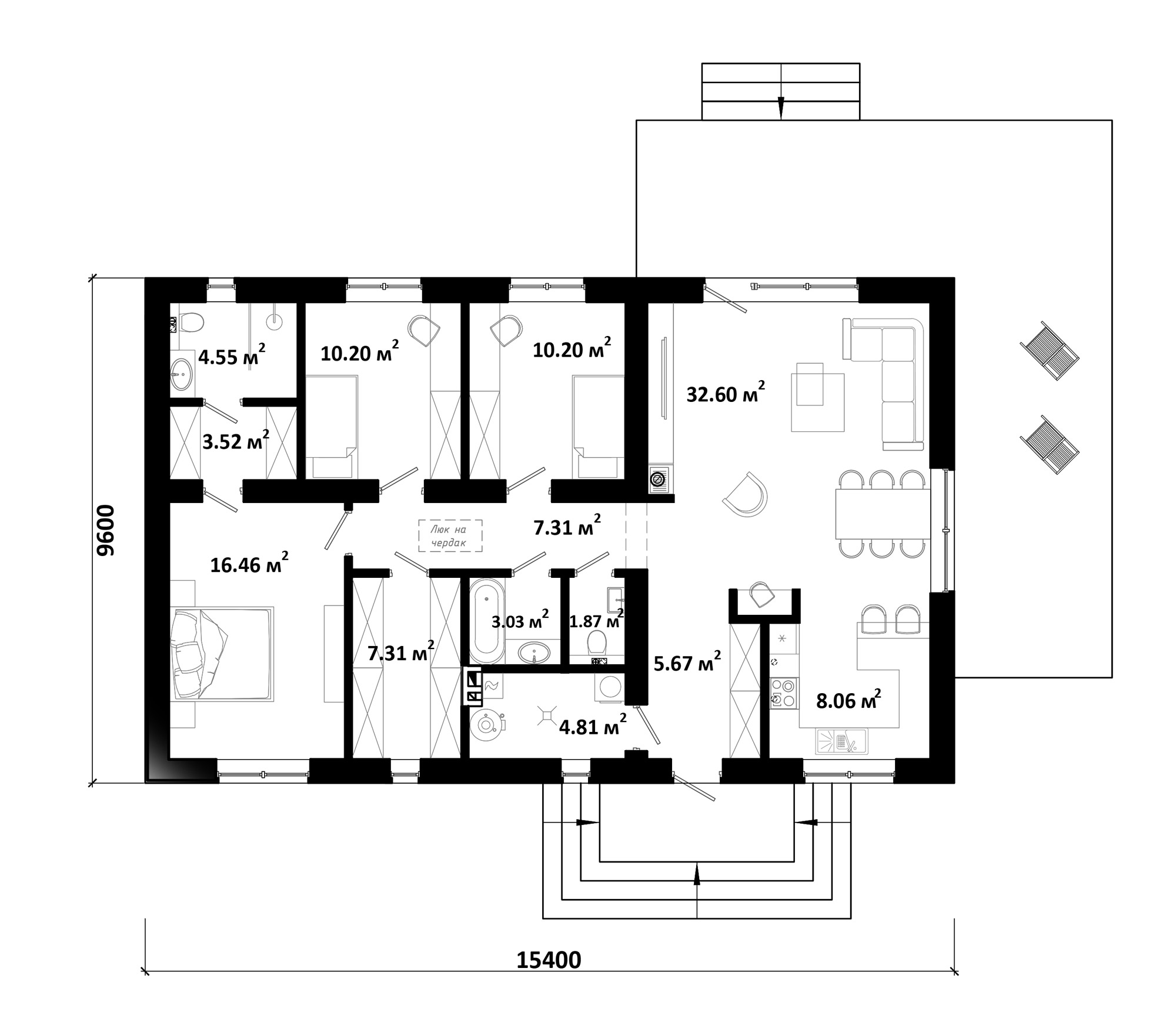
Проект одноэтажного дома DELLI
- Оригинальный |
- Зеркальный
Общая площадь: 116 м
Площадь первого этажа: 116 м
Площадь котельной: 4.8 м
Материал стен:
Материал перекрытий: Деревянные балки
Материал кровли:
Площадь кровли: 202 м
Тип кровли: Двухскатная
Угол кровли (град.): 25
Высота в коньке: 5,61 м
Тип отопления:
Площадь застройки: 216.15 м
Строительный объем: 635 м
Срок подготовки проекта: 7 дней
Строительство: ~ 266 800 BYN
Материалы и работы по следующим этапам:
- подготовка участка (снятие плодородного грунта)
- устройство ленточного фундаментов (без коммуникаций)
- возведение стен и перегородок
- устройство перекрытий
- устройство монолитных поясов и перемычек
- монолитная лестница (для 2-х этажных)
- монтаж стропильной системы
- устройство кровли (ЗАБУДОВА, утепление 20 см)
------------------------------------------------
ВНИМАНИЕ! Данная стоимость является ориентировочной и не может расцениваться как коммерческое предложение.
Стоимость проекта:
2500 BYN
ЗАКАЗАТЬ ПРОЕКТ
Проектом дома предусмотрены следующие технические решения:
- Фундаменты: монолитный ленточный или свайно-ростверковый
- Стены: газисиликатный блок 400 мм
- Утепление фасадов: каменная вата
- Перекрытия: по деревянным балкам
- Утепление кровли: каменная вата
- Покрытие кровли: черепица, черепица ЗАБУДОВА
- Источник тепла: газовый котел








Комментарии ()