Подобрать проект
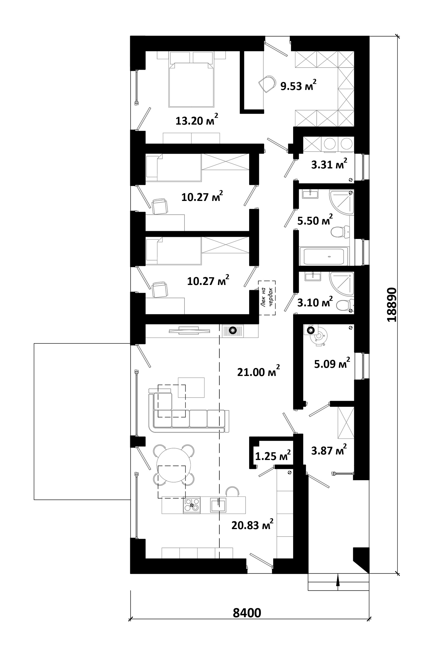
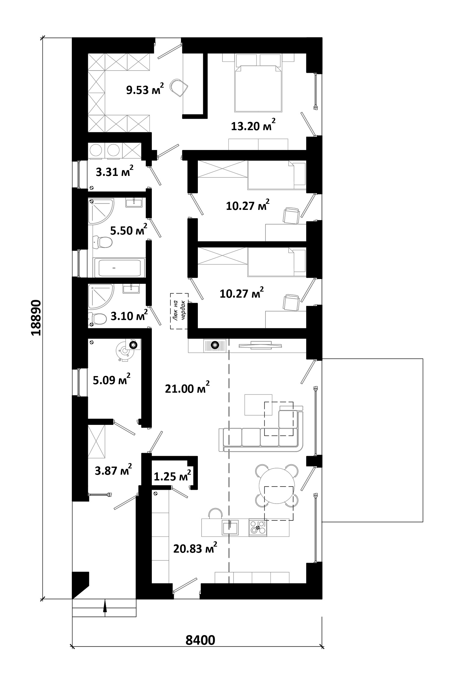
Проект одноэтажного дома с двухскатной кровлей Экономичный-2
- Оригинальный |
- Зеркальный
Общая площадь: 115 м
Площадь первого этажа: 115 м
Площадь котельной: 3,9 м
Материал стен:
Материал перекрытий: Деревянные балки
Материал кровли:
Площадь кровли: 196 м Тип кровли: Двухскатная Угол кровли (град.): 35 Высота в коньке: 6,2 м Тип отопления:
Площадь застройки: 180 м Размеры участка: 17,4 х 27,89 м Строительный объем: 740 м Срок подготовки проекта: 3-5 днейСтроительство: ~ 264 500 BYN
Материалы и работы по следующим этапам:
- подготовка участка (снятие плодородного грунта)
- устройство ленточного фундаментов (без коммуникаций)
- возведение стен и перегородок
- устройство перекрытий
- устройство монолитных поясов и перемычек
- монолитная лестница (для 2-х этажных)
- монтаж стропильной системы
- устройство кровли (ЗАБУДОВА, утепление 20 см)
------------------------------------------------
ВНИМАНИЕ! Данная стоимость является ориентировочной и не может расцениваться как коммерческое предложение.
Стоимость проекта:








Комментарии (4)