Подобрать проект
Проект одноэтажного дома с двухскатной кровлей Экономичный
- Оригинальный |
- Зеркальный
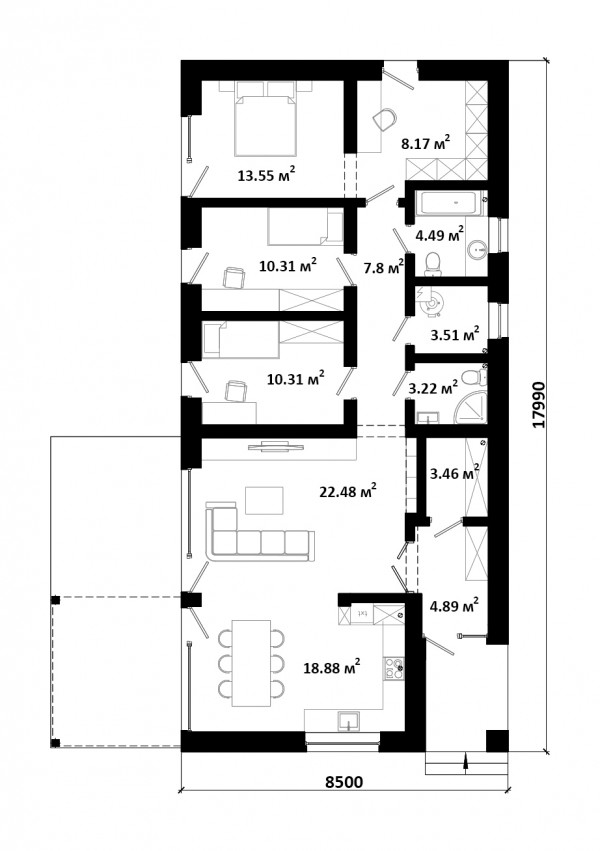
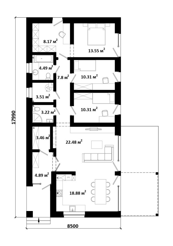
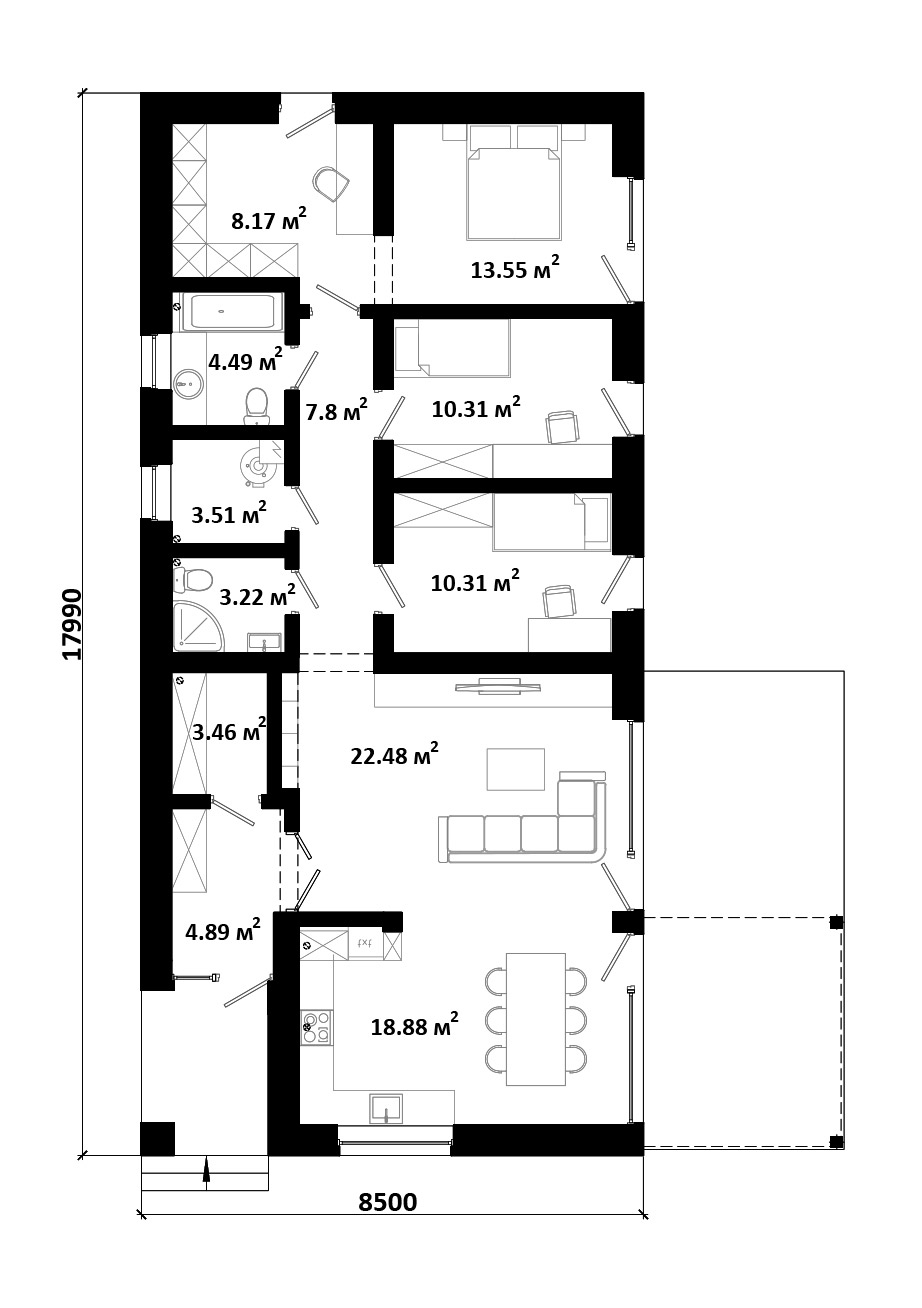
Общая площадь: 111 м
Площадь первого этажа: 111 м
Площадь котельной: 3,5 м
Материал стен:
Материал перекрытий: Деревянные балки
Материал кровли:
Площадь кровли: 186 м
Тип кровли: Двухскатная
Угол кровли (град.): 35
Высота в коньке: 6,2 м
Тип отопления:
Площадь застройки: 180 м
Размеры участка: 13,9 х 26,39 м
Строительный объем: 726 м
Срок подготовки проекта: от 20 дней
Строительство: ~ 255 300 BYN
Материалы и работы по следующим этапам:
- подготовка участка (снятие плодородного грунта)
- устройство ленточного фундаментов (без коммуникаций)
- возведение стен и перегородок
- устройство перекрытий
- устройство монолитных поясов и перемычек
- монолитная лестница (для 2-х этажных)
- монтаж стропильной системы
- устройство кровли (ЗАБУДОВА, утепление 20 см)
------------------------------------------------
ВНИМАНИЕ! Данная стоимость является ориентировочной и не может расцениваться как коммерческое предложение.
Стоимость проекта:
2300 BYN
ЗАКАЗАТЬ ПРОЕКТ



Да, в рамках нового проекта можно сделать.
Кстати, эскиз у нас уже есть))
Вопрос по кровле. Можно ли ее сделать обычную двускатную а не как в барнхаусе и сколько это будет стоить? И красиво ли это)
Вопрос по вентилляции. Не совсем понятно как она устроену здесь?