Подобрать проект
проект одноэтажного дома с шатровой фальцевой кровлей MAK 2
- Оригинальный |
- Зеркальный
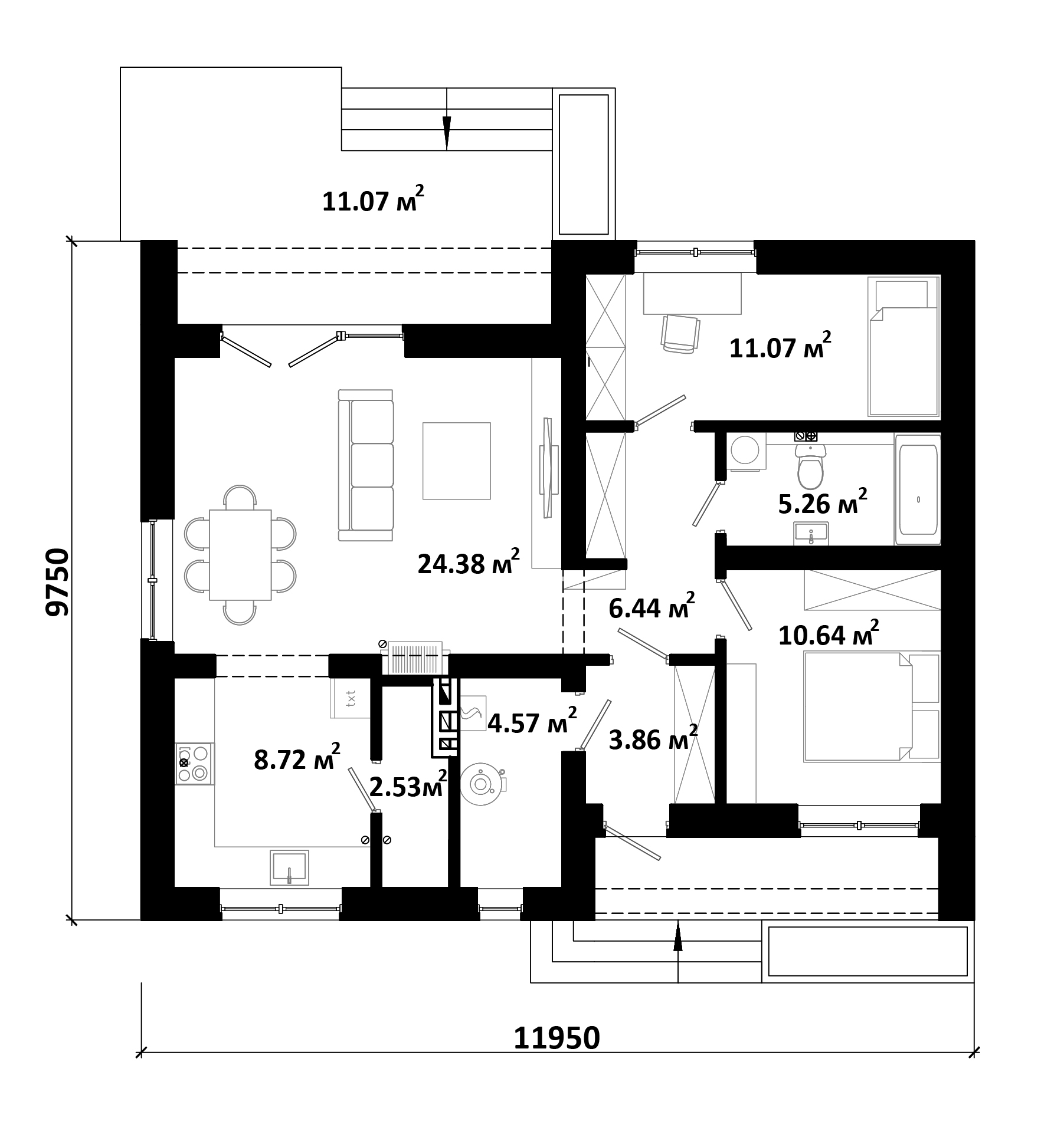
Общая площадь: 81 м
Площадь первого этажа: 81 м
Площадь котельной: 4,57 м
Материал стен:
Материал перекрытий: Деревянные балки
Материал кровли:
Площадь кровли: 180 м
Тип кровли: Шатровая
Угол кровли (град.): 30
Высота в коньке: 6,5 м
Тип отопления:
Площадь застройки: 139 м
Размеры участка: 20.05 х 18.65 м
Строительный объем: 320 м
Срок подготовки проекта: от 20 дней
Строительство: ~ 186 300 BYN
Материалы и работы по следующим этапам:
- подготовка участка (снятие плодородного грунта)
- устройство ленточного фундаментов (без коммуникаций)
- возведение стен и перегородок
- устройство перекрытий
- устройство монолитных поясов и перемычек
- монолитная лестница (для 2-х этажных)
- монтаж стропильной системы
- устройство кровли (ЗАБУДОВА, утепление 20 см)
------------------------------------------------
ВНИМАНИЕ! Данная стоимость является ориентировочной и не может расцениваться как коммерческое предложение.
Стоимость проекта:
1900 BYN
ЗАКАЗАТЬ ПРОЕКТ
-
122.00 м DEDAL122 м Площадь первого этажа:
от 700 BYN Цена проекта~ 280600 BYN Стоимость постройки: -
50.50 м IMBIR50.5 м Площадь первого этажа:
от 700 BYN Цена проекта~ 116150 BYN Стоимость постройки: -
86.00 м ELKA 286 м Площадь первого этажа:
от 700 BYN Цена проекта~ 197800 BYN Стоимость постройки: -
98.00 м DECYMA 1098 м Площадь первого этажа:
от 800 BYN Цена проекта~ 225400 BYN Стоимость постройки:








Размер крытой части террасы — 2 метра.