Подобрать проект
Проект офисного здания с парковкой BC-800
- Оригинальный |
- Зеркальный
Общая площадь: 800 м
Площадь первого этажа: 27,7 м
Площадь второго этажа: 258,3 м
Количество этажей: 4
Материал стен:
Материал перекрытий: Железобетон
Материал кровли: Мембрана
Тип кровли: Плоская Угол кровли (град.): 2 Высота в коньке: 14,7 м Площадь застройки: 243 м Строительный объем: 3660 м Срок подготовки проекта: 5 днейСтроительство: ~ 2 000 000 BYN
Материалы и работы по следующим этапам:
- подготовка участка (снятие плодородного грунта)
- устройство ленточного фундаментов (без коммуникаций)
- возведение стен и перегородок
- устройство перекрытий
- устройство монолитных поясов и перемычек
- монолитная лестница (для 2-х этажных)
- монтаж стропильной системы
- устройство кровли (ЗАБУДОВА, утепление 20 см)
------------------------------------------------
ВНИМАНИЕ! Данная стоимость является ориентировочной и не может расцениваться как коммерческое предложение.
Стоимость проекта:
Готовый проект офисного здания на 800 м2 со встроенной парковкой.
Это здание проектировалось для участка небольших габаритов. В такой ситуации всегда встает вопрос - а как организовать парковку?
Архитекторы нашего бюро нашли выход - мы предложили первый уровень здания отдать под организацию 12 парковочных мест и входа в лестничный блок.
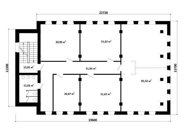
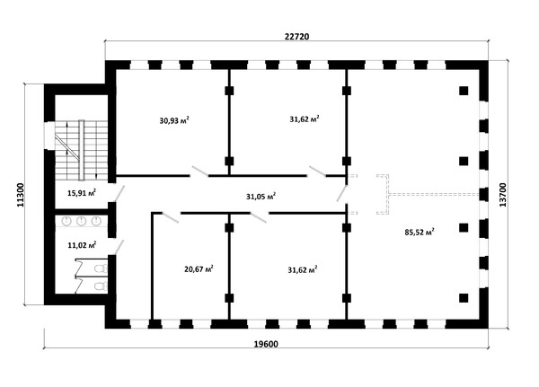
Административные помещения начинаются на втором этаже. В общей сложности получилось 800 метров площади здания. При этом удовлетворены все требования по наличию парковочных мест.
Этот проект подойдет для любого участка где планируется строительство небольшого административного здания.
ВНИМАНИЕ! Предлагается к продаже только КОНЦЕПЦИЯ здания. Планировки, фасады, разрезы, 3D визуализация. Для последующего проектирования и согласования на конкретном земельном участке необходимо обратиться к проектировщику с соответствующим аттестатом.
Технология строительства административного здания:
- фундаменты: исходя из геологии участка
- стены: керамзитобетонные блоки 400 мм
- перекрытия: монолитный железобетон
- кровля: плоская, гидроизоляционная мембрана
- источник тепла: центральное отопление








В данном случае будем предусматривать железную аварийную лестницу справа — что бы она не портила фасад.
Но по новым нормам тут может возникнуть вопрос с лифтом.
Приезжайте — будем знакомиться)
Видимо, вместо плана подвала развещен повторно план второго этажа. Интересно посмотреть, какой подвал предусмотрен в этом здании?
Нет, просто сайт всегда картинку под №3 называет подвалом — так запрограммирован).
Так что нет в этом проект подвала — а все этажи показаны верно.