Подобрать проект
Проект одноэтажного дома с навесом и хозблоком BERGEN KZ
- Оригинальный |
- Зеркальный
Общая площадь: 233 м
Площадь первого этажа: 178 м
Площадь котельной: 5 м
Материал стен:
Материал перекрытий: Плиты перекрытия
Материал кровли: Мембрана
Площадь кровли: 265 м Тип кровли: Плоская Угол кровли (град.): 2-3 Высота в коньке: 4.25 м Тип отопления:
Площадь застройки: 307 м Размеры участка: 32.35 x 25.7 м Строительный объем: 757 м Срок подготовки проекта: 3-5 днейСтроительство: ~ 535 900 BYN
Материалы и работы по следующим этапам:
- подготовка участка (снятие плодородного грунта)
- устройство ленточного фундаментов (без коммуникаций)
- возведение стен и перегородок
- устройство перекрытий
- устройство монолитных поясов и перемычек
- монолитная лестница (для 2-х этажных)
- монтаж стропильной системы
- устройство кровли (ЗАБУДОВА, утепление 20 см)
------------------------------------------------
ВНИМАНИЕ! Данная стоимость является ориентировочной и не может расцениваться как коммерческое предложение.
Стоимость проекта:
Проект дома BERGEN - теперь с хоз постройкой
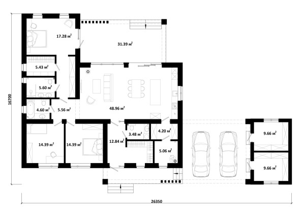
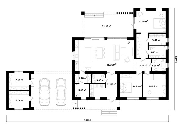
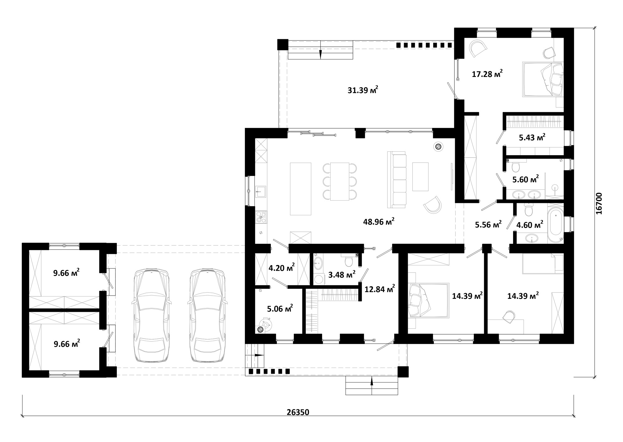
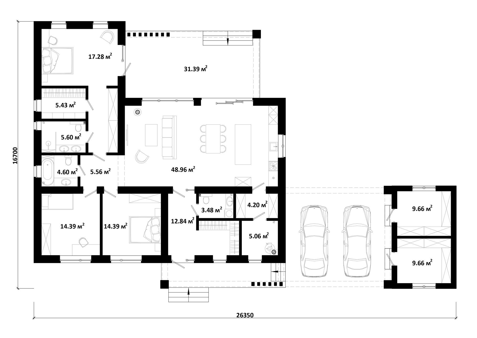
Представляем вам еще одну версию популярного проекта одноэтажного дома с плоской крышей - в этот раз с пристроенным хозяйственным помещением. Многие наши клиенты-застройщики спрашивают - как можно предусмотреть какое-нибудь помещение для хранения садового инвентаря, газонокосилок, генераторов, резины и велосипедов? И вот к этому дому мы “додумали” вот такую пристройку в виде помещения разбитого на 2 комнаты (при желании можно объединить). Получилось очень функционально!
При желании можно переоборудовать под гараж на одно машино место.
С архитектурной точки зрения, вроде бы обычная пристройка, накрывается общим объемом крыши. Что делает ее неотъемлемой частью дома. В остальном это все тот же прекрасный дом BERGEN с тремя спальнями и шикарной дневной зоной)
В проекте используются следующие материалы:
- фундамент: монолитный ленточный, плитный или свайно-ростверковый
- стены: керамзитобетонные блоки 400 мм
- перекрытия: железобетон
- крыша: мембрана
- утепление фасадов: каменная вата 50 мм
- источник тепла: газовый котел








Комментарии (4)